Réhabilitation de l' école Paul Barruel
Troisième lettre d'information | MARS 20023 :
Retrouver la lettre d'information dédiée aux travaux de restructuration et d'extension de l'école élémentaire ci-dessous.

Deuxième lettre d'information le 30 aout 2022 :
Retrouver la lettre d'information dédiée aux travaux de restructuration et d'extension de l'école élémentaire ci-dessous.

Première lettre d'information le 17 mai 2022 :
Retrouver la lettre d'information dédiée aux travaux de restructuration et d'extension de l'école élémentaire ci-dessous.
Démarrage des travaux le 18 avril 2022 :
le désamiantage avait commencé quelques semaines avant. Aujourd'hui l'accès au chantier a été aménagé, ceci a permis aux premières pelles mécaniques d'attaquer la démolition durant les vacances scolaires.
Insertion paysagère:
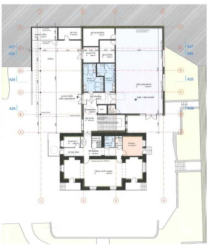
Ci-joint le projet de la " RESTRUCTURATION ET EXTENSION DE L'ECOLE ELEMENTAIRE "
Réunion publique du 19 Octobre 2021:
Une partie de l’équipe municipale et le maire étaient présents, ainsi que le cabinet d'architecture Laurent Louis en charge du projet. La réunion a eu lieu à la salle des fêtes et les points abordés ont été les suivants :
1) Historique du projet
2) Architecture
3) L’école durant le chantier
4) Budget
5) Questions/réponses
1) Historique du projet:
La rénovation de l’école a été initiée principalement pour garantir un accès aux personnes à mobilité réduite.
2005 : loi du 11/02/2005 (garantir un accès, pour les personnes à mobilité réduite, dans les lieux public)
2015 : obligation d’appliquer la loi de 2005 avec dérogation si projet initié
2017 : Étude + enquête
2018 : Début du projet + cahier des charges + calcul de l’emprunt maximum pouvant être fait par la commune (estimé à 1,5 millions d’€)
2019 : Suite du projet : premier chiffrage à 2,8 millions d’€
2020 : Revue du projet : nouveau chiffrage à 1,8 millions d’€
2021 : Validation du chiffrage + Dépôt permis de construire + Dépôt permis de démolition
2) Architecture :
La réhabilitation de l'école sera scindée en deux parties : la partie Sud (coté route) avec la façade historique et le toit seront conservsé au maximum. Les modifications seront principalement à l'intérieur, la partie Nord coté tennis sera entièrement démolie puis reconstruite en béton traditionnel afin de maitriser au mieux les coûts. Cette partie sera d'un aspect plus contemporain avec un large toit plat. Des choix importants ont été fait afin de garantir la pérennité du projet. Baisser la hauteur de la salle de motricité qui était trop haute, choisir des matériaux traditionnels pour l'isolation et la structure du bâtiment trop onéreux. Néanmoins le projet garde des performances écologiques, grâce à l'isolation extérieure très performante de la partie nord, et la pose de capteurs solaires sur le toit pour satisfaire aux besoins en électricité de l'école. Elle sera aussi reliée au réseau de chaleur communal alimenté par des plaquettes forestières. Vous trouvez en pièces jointes des plans du projet.
3) École durant le chantier:
Durant les travaux les élèves seront dans le bâtiment multi-fonctionnel. Cette organisation a été validée auprès de plusieurs organismes concernés afin de garantir l'accueil des enfants. Une classe sera aménagée à la place de la garderie qui elle sera déplacée dans la cantine. Deux classes iront dans la salle du conseil séparées par une cloison phonique provisoire. Un sol en plastique a été installé pour protéger le parquet en bois . La récréation se fera sur le terrain de tennis, avec un barnum, version XL en guise de préau.
4) Sécurité et accès au chantier:
Le chantier sera totalement clos et barricadé. La cour de récréation actuelle sera totalement condamnée et les bennes de chantier placées dans celle-ci. L’accès pour les professionnels se fera par le bas uniquement, depuis la route principale, via l’entrée sud. Cet accès sera modifié avec une pente plus douce et ouverture plus large. Un feu de circulation provisoire sera placé sur la route principale, permettant aux camions de sortir du chantier.
5) Budget:
Le coût total des travaux devrait s’élever à 2 563 880 €. La mairie a généré une recette de 1,37 millions d’€ pour l’instant grâce aux subventions et en vendant des biens. Donc la somme à emprunter se situe à 1,2 million d’euros. Contenu de la conjoncture actuelle, une ligne budgétaire spéciale est prévue pour pallier aux imprévus. Le remboursement ne commencerait qu'en 2023.
6) Planning:
Après le déménagement des classes prévu fin octobre, la période de Novembre à Décembre sera consacré au désamiantage de l’école. Ensuite la démolition et les travaux de reconstruction démarreront en Janvier 2022. La période des travaux sera normalement d’un an. De même que le budget, et au regard de la situation actuelle mondiale, la mairie s’attend à des retards et des délais d’approvisionnement en matériaux.
Pour conclure une fin de travaux en Janvier 2023 n’est donc pas à exclure.



Extrait du Conseil municipal du 5 novembre 2020:
La commission a visité l'école actuelle le samedi 31 octobre 2020 à 9h et le projet de rénovation de l'école sera à l'ordre du jour de la prochaine réunion de la commission Urbanisme, travaux et transition énergétique.